Наши поставщики вентиляции
Наши поставщики кондиционеров
г.Москва, Локомотивный пр., д.21,к.5, оф.310
ventclim@gmail.com
(495) 741-98-96
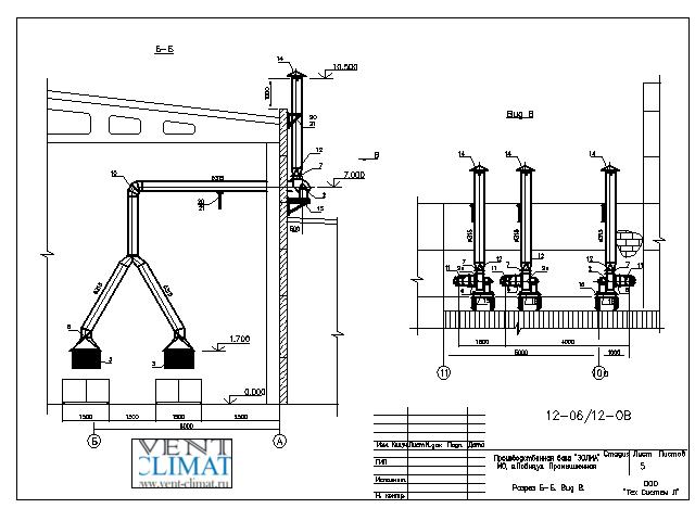
Для приведения воздушной среды на сварочном участке производственной площадки к нормируемым значениям воздушной среды по СНиПу был выполнен проект вытяжной технологическо вентиляции.
Больше информации о вентиляции в сварочных цехах






Copyright © 2006 all rights reserved. Vent-climat.
Сделано в Создание сайтов москва
|
|
|